Обмерный эскиз
Эскиз демонтажа/монтажа стен
Эскиз после перепланировки
Эскиз расстановки мебели и сантехники
Планировочное решение
1 этап.
Знакомство, постановка задач, обсуждение. Заключение договора. Составление БРИФА, технического задания. Фото и видео фиксация объекта, обмеры. Подготовка 3 и более вариантов планировок и расстановки мебели на основании брифа и технического задания. Согласование окончательного варианта. Планировка утверждается, с учетом существующих нормативов ЖК РБ и с возможностью последующего узаконивания.
Подготовка полного комплекта технических эскизов
2 этап.
- Эскиз-обмер
- Эскиз демонтажа
- Эскиз после перепланировки
- Эскиз функционального зонирования
- Эскиз расстановки мебели
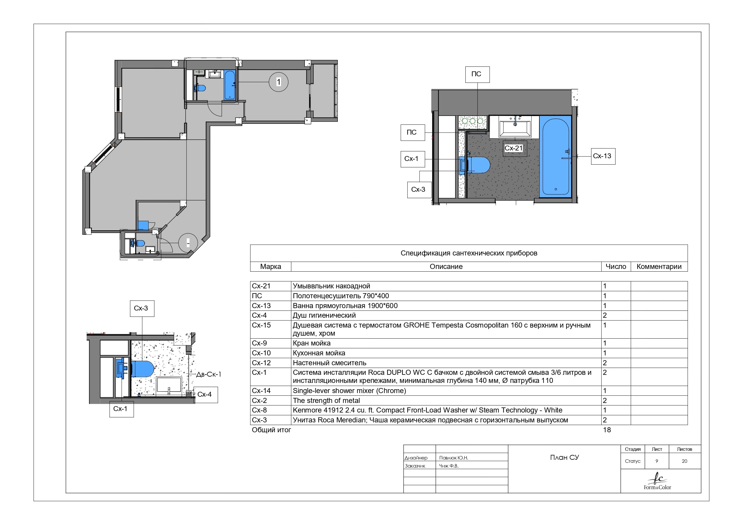
- Эскиз-схема расстановки сантехнического оборудования
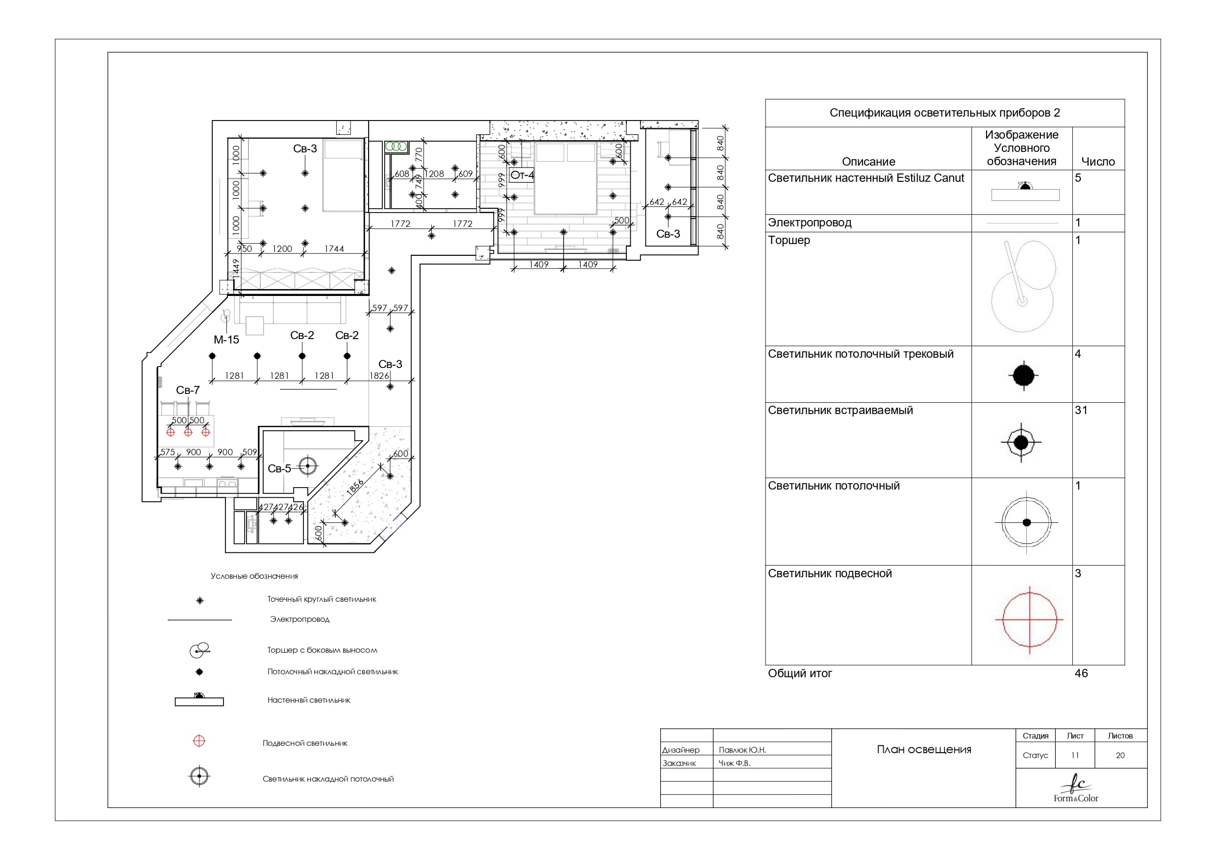
- Эскиз освещения с мебелью
- Эскиз освещения с привязками
- Эскиз включения светильников
- Эскиз электрики с мебелью
- Эскиз электрики с привязками
- Эскиз устройства потолков
- Эскиз укладки напольных покрытий
- Эскиз устройства теплых полов
- Эскиз заполнения дверных проемов
- Эскиз стен помещений с указанием отделки
- Развертки стен
Дизайн-концепция и визуализация.
3 этап.
Определение стилистического направления, подбор цветовой гаммы, основных отделочных материалов. Создание фотореалистичной 3D визуализации всех помещений на основе утвержденного планировочного решения и расстановки мебели. Согласование окончательного варианта.




Подбор материалов
4 этап.
Выезды в салоны для подбора отделочных материалов(паркет, ламинат,плинтус, керамогранит, краска, обои и т. д.) Подбор мебели, освещения, текстиля, предметов декора и т.п. Коммерческие предложенияя от поставщиков и подрядчиков.
Контактные данные
ИП Павлюк Юлия Николаевна
УНП 192801372
Эл. почта formandcolor.by@gmail.com
Г. Минск, ул. Скрыганова, 4Б-151
Тел. +375 29 358 86 87
Контактные данные
ИП Павлюк Юлия Николаевна
УНП 192801372
Эл. почта formandcolor.by@gmail.com
Г. Минск, ул. Скрыганова, 4Б-151
Тел. +375 29 358 86 87







